苏州毛线批发联盟

WOW新家 | 苏州80后恨嫁女与父母挤28平小屋,设计师爆改成4居!

只看楼主 收藏 回复
  • - -
楼主

导读

即将35岁的委托人是一个外表普通的大龄剩女。目前和妈妈共同居住在一个居住面积只有28平方米的老公房内。房子面积小,隐私性差,爸爸只能在外租房子住,一家人无法团聚。


在这一次的改造中,女儿的心愿是改善条件,一家三口和一只猫能在这28平方米的家中团聚。不过父母的心愿是能在新房中给女儿安排梳妆台,大衣柜,最好能完成3人同住的模式到婚房2人世界模式的无缝衔接。这一次的改造难点,不仅在于地方小,更糟糕的是委托人是超过敏性体质,对于气味,光线都极度过敏。经过3个月的改造,房子和户主一起同时大变样。


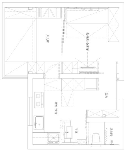
户型改造

户型图改造前

居住面积只有28平方米,一进门就是厨房,厨房直接连接主人和主人妈妈住的卧室。小卧室里有卫生间,大卧室里有阳台,生活处处不便。


户型图改造后

户型图改造后

改造后的户型动线更加合理,入门玄关增加了收纳空间,小卧室变成了餐厅厨房,干湿分离的卫生间更加适合全家人使用,客厅父母房合二为一。


玄关改造


玄关改造前

进了入户门就是厨房,一般家庭玄关的鞋柜之类的储物空间完全都!没!有!


玄关改造后

改造后的玄关增加了衣物、鞋子的储存空间。


玄关改造后


老人房改造



改造前小房间(妈妈房间)

整个空间没有什么隐私,为了大龄的女儿,业主爸爸只好在外面租房子住。所以挨着厨房的小房间,仅有一张90公分的小床。


改造后父母房+客厅+餐厅

父母房兼具了客厅和餐厅功能,可移动的餐桌隐藏在电视柜下,不用时完全不占用空间。



考虑采光因素,两个卧室之间用移动折叠移门做功能空间分割,而日常则用小隔断做区隔。小隔断底部用剑麻包裹,给小猫磨爪用,而那些隔板自然是给小猫留的爬梯直至顶部。


两个卧室之间的隔断


变身餐厅模式

隐藏在电视柜下隐藏着带滑轮的餐桌,让客厅可变成满足8人同时用餐的餐厅。


客厅收纳空间

客厅满满的收纳柜完全满足一家三口或者一家四口的日常需求。


主卧改造


改造前主卧

房子最大的房间就是业主的卧室了,由于这个空间女主人要做练肚皮舞场地,所以衣柜就成了奢侈品,衣服都塞在床下的柜子里。折叠餐桌也是不可能了,每周的聚餐都变成“时髦”的自助餐!


改造后主卧室

改造后的主卧室增强了收纳功能,女主人的书桌、梳妆台都隐藏在衣柜中。


两个卧室日常隔板不仅是可移动猫爬架,隔板上的小孔塞入木栓后,隔板两面可以随意变成可调节的置物架。


厨房改造

厨房改造前

厨房小,没有储物空间,杂乱油腻。电饭锅只能放在地上使用,业主妈妈切肉的时候整个厨房都在摇晃。由于没有安装抽油烟机,烧饭时候整个屋子弥漫着谜之味道。


厨房改造后

从玄关可以直接进入厨房,女主人晚归的时候也可以不打扰已经休息的父母,从厨房直接进入出入卧室。


厨房与卧室门在白天可以变身操作台,烤箱下方也隐藏着早餐台。



改造后厨房

卫生间改造


改造前卫生间

家里唯一的卫生间在妈妈房间,狭长的卫生间虽然塞下了马桶,但是只能进入非正常使用模式的侧坐法,卫生间的门就没有办法关闭,真的是一点儿隐私都没有,让人非常无奈。


改造前卫生间

花洒和台盆龙头安装在了一起,如果洗澡后忘记把水调台盆龙头,那么……请再洗一次澡吧!

改造后卫生间

改造后的卫生间采用干湿分离设计,因为卫生间层高不够,特别采用壁挂式暖风机取暖。

设计师


大斌空间设计事务所 设计总监  大斌(左)

大斌空间设计事务所 设计总监 曹亮(右)


相关链接

梦想改造家第三季

设计师孙华锋挑战家用无障碍设计

刘昊威复原重症妈妈“脑海中的家”

《梦想改造家》董功 挑战“悬崖上的家”

回访特辑 探访憾弃的“最美改造”

赖旭东3万造婚房:廉价材料×精彩设计

谢英凯挑高17米房 百年通天塔焕生机

《梦想改造家》王平仲 改造纸片楼里的尖角空间

重叠×兼用 本间贵史改造适合3个孩子成长的家

青山周平 让43㎡L型蜗居变身“立体胡同”

即使只有38平蜗居 也要“在一起”好好生活


梦想改造家第二季

‍王平仲:百年“连体夹缝房“7招秒变阳光小高层

颜呈勋 可可西里打造环保可变形移动营地


梦想改造家第一季

Gary曾建龙创设计奇迹 14㎡蜗居华丽变身三房

李道德 如何让大山深处的破旧民居震撼蜕变




举报 | 1楼 回复

友情链接